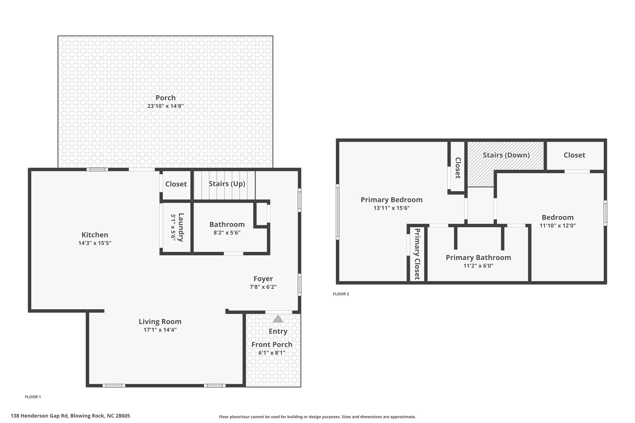
138 Henderson Gap Rd, Blowing Rock, NC 28605
Toggle Navigation
Images
Videos
Floor Plans
3D Tour
Map
138 Henderson Gap Rd
Blowing Rock, NC 28605
Scroll to Content
Images
Slideshow
Photo Grid
Hide
Previous
Next
Show more
Videos
Content Coming Soon
Floor Plans
Slideshow
Photo Grid
Hide
Previous
Next
3D Tour